Cầu thang bay lắp ghép bằng BTCT đúc sẵn

    Cầu thang bay lắp ghép bằng BTCT đúc sẵn

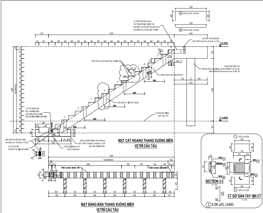
    Tổng quan

    Cầu thang bê tông đúc sẵn của OMEGA giúp bạn tiết kiệm đến 50% thời gian thi công, với chất lượng ổn định và độ bền vượt trội. Được sản xuất theo công nghệ hiện đại, sản phẩm đảm bảo sự chính xác, an toàn và tính thẩm mỹ, là giải pháp hoàn hảo cho mọi không gian.

    Khách hàng đánh giá
    5.0
    5
    0%
    4
    0%
    3
    0%
    2
    0%
    1
    0%

    Chia sẻ nhận xét về sản phẩm

    Đánh giá và nhận xét

    Gửi nhận xét của bạn

        Bình luận
        Gửi bình luận
          Bình luận